-
Sporten & bewegen
Sporten & bewegen
Ik wil- Sporten in mijn omgeving
- Offroadfietsen
- Toertochten
- Lopen
- Kajakken, kanoën, suppen
- Paardrijden
- Skeeleren
- Multimoven
Acties en campagnes- Ga voor koud
- Coachen is de mooiste sport
- Maand van de Sportclub
- Geef tieners een stem
- Actief Ouder Worden
- Alle acties
Samen bewegenInspirerende thema's -
Onze dienstverlening
Onze dienstverlening
Wij ondersteunen- Lokale besturen
- Sportfederaties
- Topsport
- G-sport
- Sportclubs
- Bedrijven
- Trainers en begeleiders
- Scholen
- Organisatoren van sportevenementen
Wij helpen bijWij delen kennis - Vlaamse Trainersschool
- Onze centra
- Onze sportkampen
- Kennisplatform

Toegankelijkheid in zwembaden
De Vlaamse Overheid lanceerde in 2025 met het ‘zwembaddecreet’ een nieuw en structureel subsidiekader voor de bouw (of totale renovatie) van publieke zwembaden. Toegankelijkheid is hier belangrijker dan ooit, want één van de voorwaarden is dat het zwembad minimum een kwaliteitslabel A+ Toegankelijke sportinfrastructuur moet behalen. Op deze pagina ontdek je alles over hoe je dit kan aanpakken.


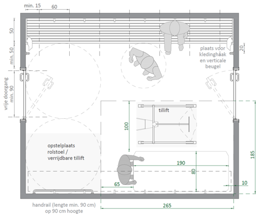
Ontwerp instrument
Sport Vlaanderen en Inter voorzien met het ontwerpinstrument een handige tool waarmee je als ontwerper of bouwheer van een zwembad zelf aan de slag kan. Het instrument bevat alle toegankelijkheidscriteria en principetekeningen die bij het A+ label horen en dit voor de gehele keten van het zwembad, zowel voor zwemmers, toeschouwers en werknemers. Zo vind je hier bijvoorbeeld niet alleen normen voor deurbreedtes, hellingsgraden en draaicirkels, maar ook specifieke richtlijnen voor het inrichten van de inkomhal, aangepaste kleedkamers, sanitair en douches.
Herbekijk onze workshops
Sport Vlaanderen en Inter organiseerden verschillende workshops ‘zwemmen zonder drempels’ waarin de ontwerpprincipes die nodig zijn om een inclusief zwembad te realiseren verder toegelicht werden.